介護保険制度における住宅改修の問題2
- 投稿日:2022年 3月 4日
- テーマ:アンチエイジング・ハウス / ライフサイクルコスト / 人生を変えるリノベーション / 住まい / 理念
先日3月2日に、介護保険制度を使って住宅改修する際の問題点を上げました。
介護保険からの支払い限度額18万円に固執する余り、手先の小工事となり、
抜本的な解決にはなっていないことが多いのです。
突然介護が始まり、本人もご家族も気が動転するのはごく普通のことです。
増してや介護保険の詳細について理解するのはプロでも難しいことなのです。
日々の生活を少しでも楽にしてあげたいと、ケアマネージャーを筆頭に多くの介護スタッフが
全力を尽くしてサービスを提供しております。
私たちのデイサービスも、機能訓練に特化して残存能力の維持や向上に務めており、
それ相当の効果があることを実感しております。
しかしデイサービスに滞在している時間は、24時間の中の約8時間だけであり、
それも一週間の中で1~4日と限られているのです。
圧倒的にご自宅で過ごす時間が長いのです。
今日本では人生100年時代は、遠い話ではなく近未来のことになります。
75歳で要支援となっても今の平均寿命から考えても10年以上は生活をしなければなりません。
医学の進歩により、平均寿命も延びていきますので、益々自宅で暮らす時間が長くなるのです。
私たちは「死ぬリスク」に意識がいきがちですが、
実はこれからの社会は「生きるリスク」の方に意識を変えていかないといけないようです。
在宅介護を考える場合、本人が自分で生活できる環境を整えることで、
ご家族の負担も大幅に軽減されるのです。
10年、20年というスパンで考えなければならない時代となりました。
住宅改修工事費を、単なる「費用」としてではなく、
リスクを回避する「先行投資」として考えてみた方が良さそうです。
石川シュウジ
母ちゃんを通わせたい施設6
- 投稿日:2022年 2月10日
- テーマ:アンチエイジング・ハウス / 人生を変えるリノベーション / 住まい / 理念
母の介護をきっかけに、子育てから介護までが楽にできる
小さな家を建てたのが2009年になります。
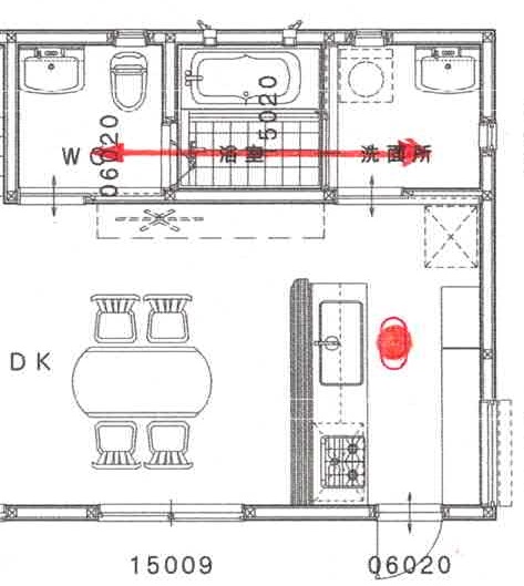
この家の一番の特徴は、脱衣所~浴室~トイレが並んでおり、
通り抜けることができる間取りになっていることです。
妻・利佳子が長い時間立っているのが、キッチン前になりますよね!
そこを動線の基準と考え、水回りを近くに並べます。
家事をする場合は、ほとんどが同時に進行と
なります。食事を作りながら、洗濯、お風呂の掃除、
さらに母の介護もしなければなりません。
母は自分でトイレの用を足すことはできましたが
たまに粗相することもあります。
その場合妻がトイレで脱がせ、脱がせた衣類は浴室で洗うのですが、
通り抜け出来るためにDKを通ることがありません。
予洗した後は隣の洗濯機に入れて完了です。
何よりも家族に見られることがないので、
母の誇りを護ることにつながるのです。
これには更にメリットがあるのです。
粗相した場合お尻を洗うのがとても簡単です。
浴室の壁には手すりがあり、母は立ったままシャワーでお尻を洗ってもらえるので
気分良くベッドに戻ることができるのです。
ある日妻が泊りで、私と母だけで過ごす日がありました。
母は粗相をしてしまい、自分で始末しようとしますがなかなか上手にいきません。
余りにもトイレが長いので私が覗いてみると一人で格闘しておりました。
息子には声を掛けられなかったのだと思います。
嫌がる母の下着を脱がせ、浴室で母のお尻を洗います。
「誰もが通る道なので仕方がない!」という私の声に、母は涙ぐみます。
私は顔を見られないようにしておりました。 つづく
石川シュウジ
*この間取りは子育てにも楽ちんなのです。
料理をしながら、小さな子どもが「お母さん、ウンチ出たよ!」と
呼ばれても、動線が短いので即対応できます。
お漏らししても、浴室で予洗して洗濯機へポイ!
子育てと介護は同じ動線となるのです。
温度を可視化する
- 投稿日:2022年 2月 1日
- テーマ:アンチエイジング・ハウス / 人生を変えるリノベーション / 理念
本日2月がスタート!ここ北国北上市も、さすが2月という寒さでしたね。
「今日も、しばれるねえ~!」が挨拶となっています。
さて私たち人間が寒い暑いと感じるのは、人によってその感じ方が違います。
同じ室温でも体調によって寒いと感じたり、暖かいと感じたりする日もありますね。
今日ご紹介するのは、温度を色で表す「サーモカメラ」です。
スマホに装着して普通に写真を撮るだけなんです右の。上の写真をご覧ください。
これは妻の実家の冬の写真です。
右上のエアコンや左の人間は暖かいので赤く写って
おります。正面の窓や壁が薄い青になっており
表面温度が低くなっていることが分かります。
壁の中で濃い青に写っている縦の線があります。
これは構造体の軽量鉄骨のある場所です。鉄骨が
外気に冷やされて低くなっていることが、よく
分かる写真です。床も冷たいですね!
一般的に寒い家は、床からの冷えを一番最初に足の裏で感じると思います。
この経験を感覚ではなく、目で見えるように可視化するのがこのサーモカメラなのです。
このカメラを使うと、家の中でどこが一番寒いのかが分かります。
つまり断熱材を施工していても寒い家は、断熱材がその役目を果たしているのか、
断熱欠損(切れ目)があるかどうかが一目瞭然なのです。
一度サーモカメラで自宅を撮影してみませんか?
石川シュウジ
































